Modern Houses: 9 Floor Plans and Design Ideas

Table of Contents

Modern houses look simple on the outside, but a lot of smart planning goes into them. That is why choosing the right modern house plan matters so much.

The layout affects how your home feels, how you move through it, and how comfortable it is to live in every day.

In this guide, you will learn what makes a home truly modern, which layouts work best, and how to plan for real life, not just looks.

Whether you are building new or remodeling, this will help you make better design choices.

What Makes a House Plan “Modern”?

A house plan is called modern when it focuses on clean lines, simple shapes, and open spaces. Modern homes avoid extra details and heavy decoration. Instead, they feel calm and uncluttered.

Open floor plans are a big part of modern design because they make the home feel bigger and brighter. Large windows are also common, bringing in natural light and connecting indoor spaces with the outdoors.

Many modern house plans use flat or low-slope roofs and a mix of materials like wood, glass, and concrete.

Most importantly, a modern plan is designed for how people live today, not just how the house looks.

Modern house floor plans focus on comfort, flow, and everyday living. These layouts are designed to feel open, bright, and easy to use without wasting space.

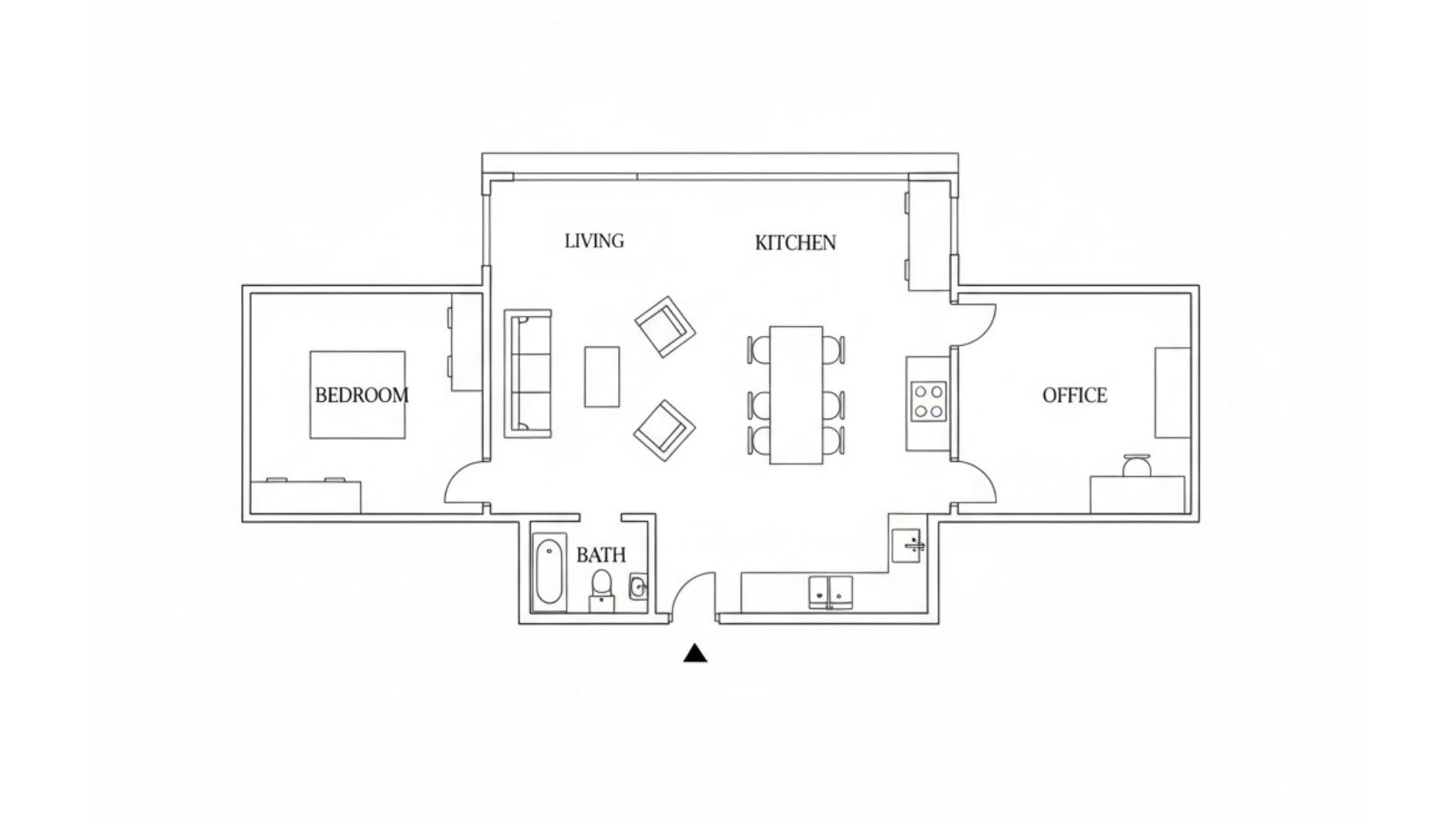
1. Open Living, Dining, and Kitchen

modern house floor plan open living layout

This is one of the most popular modern layouts today. The kitchen, dining, and living areas flow into one open space, making the home feel larger.

It allows more natural light to move through the house. This layout is great for families and entertaining. It also helps people stay connected during daily activities.

2. Semi-Open Floor Plans

modern house floor plan semi open layout

Semi-open layouts mix open spaces with a bit of separation. Partial walls, sliding doors, or wide openings help define rooms.

This layout offers privacy without closing everything off. It works well for people who want quiet zones but still like an open feel. Many modern homes now use this balanced approach.

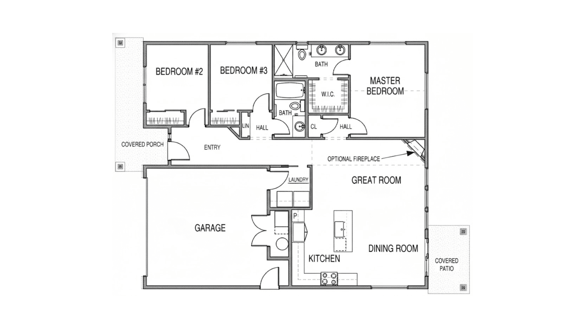
3. Split Bedroom Layouts

modern house floor plan split bedroom layout

In this layout, the main bedroom is separated from the other bedrooms. This creates privacy for homeowners, guests, or older children.

It is common in both single-story and two-story modern homes. The layout also helps reduce noise. It works well for families and multi-generational living.

4. Indoor-Outdoor Living Layouts

modern house floor plan indoor outdoor layout

Modern floor plans often connect indoor spaces to patios or decks. Large sliding or folding doors make this easy. The living room or kitchen usually opens to the outdoor area.

This layout brings in more light and fresh air. It is ideal for warm climates and relaxed lifestyles.

5. Central Living Core Layout

modern house floor plan central living core

This layout places the main living space at the center of the home. Bedrooms and private rooms are arranged around it. It creates a strong flow and makes the house easy to navigate.

Natural light often enters from multiple sides. This design feels open but still well-organized.

6. Single-Story Modern Layouts

modern house floor plan single story layout

Single-story modern homes focus on easy movement and comfort. All rooms are on one level, which is great for all age groups.

The layout often includes wide open living areas. Hallways are kept short or avoided. This design feels clean, simple, and practical.

7. Two-Story Modern Layouts

modern house floor plan two story layout

Two-story layouts help separate living and sleeping areas. Shared spaces are usually on the main floor. Bedrooms are placed upstairs for privacy.

This layout works well on smaller lots. It also allows for large windows and high ceilings in main areas.

8. Home Office-Friendly Layouts

modern house floor plan home office layout

Many modern floor plans now include a dedicated office space. This room is often placed away from busy areas. It helps reduce noise and distractions.

Some layouts use flexible rooms that can change over time. This design supports work-from-home living.

9. Compact and Efficient Layouts

modern house floor plan compact layout

Smaller modern homes focus on smart space use. Every room has a clear purpose. Storage is often built into walls or hidden areas.

Open layouts help the home feel bigger than it is. These plans are great for small families or city living.

Modern House Plans by Home Size

Modern house plans come in many sizes, and each size works best for different needs. The key is choosing a layout that fits your lifestyle, not just your square footage.

Home Size Best For Key Layout Features Design Tips
Small Modern Homes (Under 1,500 sq ft) Singles, couples, downsizing Open living area, fewer walls, compact bedrooms Use large windows, built-in storage, and simple layouts
Mid-Size Modern Homes (1,500–2,500 sq ft) Growing families Open main level, separate bedrooms, flexible rooms Add a home office, pantry, and smart storage
Large Modern Homes (2,500+ sq ft) Large families, luxury living Zoned layouts, multiple living areas, private suites Balance open spaces with quiet rooms and shading
Narrow Lot Modern Homes Urban areas, tight lots Vertical layouts, stacked rooms, rooftop spaces Focus on light wells and tall windows
Multi-Generation Modern Homes Extended families Split suites, private entries, shared living areas Plan sound control and separate storage zones

No matter the size, modern house plans work best when space is used with purpose. A well-designed layout can make even a small home feel open, comfortable, and easy to live in every day.

Modern House Plan Ideas Homeowners Love

modern house plan ideas homeowners love

Modern house plans often include small design ideas that make daily life easier. These features may look simple, but homeowners love them because they add comfort and flexibility.

1. Pocket and Sliding Doors

Instead of swing doors, modern homes use pocket or sliding doors. These save space and keep rooms flexible. Doors can stay open most of the time and close when privacy is needed. This works well for offices, guest rooms, and bathrooms. It adds function without visual clutter.

2. Mudroom Drop Zones

Modern plans often include a small drop zone near the entry. This space holds shoes, bags, and jackets. It helps keep the rest of the home clean. Even small homes benefit from this idea. Homeowners love the daily convenience.

3. Simple Outdoor Courtyards

Courtyards offer privacy without needing a large yard. They are often placed near living or dining areas. This creates a calm outdoor space for relaxing. Homeowners enjoy the extra light and airflow. Courtyards feel private and peaceful. They also help bring nature closer without opening the home to the street.

4. Minimal Entryways With Storage

Modern entryways are clean and welcoming. They often include hidden storage or slim cabinets. This keeps clutter out of sight. Homeowners like the calm feeling when entering the home. A simple entry sets the tone for the whole house. Smart storage here makes daily coming and going easier and more organized.

Building vs. Remodeling with Modern House Plans

Choosing between building a new home or remodeling an existing one depends on your budget, timeline, and goals. Both options can achieve a modern look, but the process and effort involved are very different.

Factor Building a New Modern Home Remodeling an Existing Home
Design Freedom Full control over layout, structure, and flow Limited by existing walls and structure
Cost Control Easier to plan costs from the start Costs can rise due to hidden issues
Timeline Longer from start to finish Often faster for smaller updates
Layout Changes Easy to plan open and flexible layouts Some walls may be hard to remove
Modern Features Simple to add large windows and clean lines May require extra work or compromises
Disruption No living-in noise or dust Living in the home can be challenging

Both building and remodeling can create a modern home when planned well. The right choice depends on how much change you want and how flexible you need the process to be.

How to Choose the Right Modern House Plan

Choosing the right modern house plan is about more than looks. A good plan should fit how you live today and how your needs may change over time.

  • Start with Your Daily Routine: Think about how you use your home from morning to night. This helps you pick a layout that feels natural and easy.
  • Focus on Function First: A modern plan should work well before it looks good. Make sure rooms are the right size and placed in the right spots.
  • Check Natural Light and Window Placement: Good light makes a home feel open and welcoming. Windows should bring in light without hurting privacy.
  • Plan for Storage Early: Modern homes need smart storage to stay clutter-free. Look for built-ins, pantries, and closets in the plan.
  • Think About Privacy Needs: Open layouts are great, but quiet spaces still matter. Make sure bedrooms and work areas feel separate.
  • Match the Plan to Your Lot: The shape and size of your lot affect what will work. A good plan should fit the site, not fight it.

A well-chosen modern house plan makes daily life smoother and more comfortable. When the layout fits your lifestyle, the modern look comes together naturally.

Conclusion

Modern house plans are not just about clean lines and a stylish look. They are about creating a home that feels easy to live in every day.

The right floor plan can improve how you move through your space, how light flows in, and how comfortable your home feels.

Whether you are building from the ground up or remodeling an existing house, good planning makes all the difference. Take time to study layouts, think about your daily needs, and picture how each space will be used.

If you are ready to move forward, start by saving a few plans you love and comparing them side by side.

Leave a Reply

Your email address will not be published. Required fields are marked *

Table of Contents

About the Author

Daniel Brooks has managed end-to-end moves, household relocations, packing & moving workflows, and site preparation for regional and national carriers over 15 years. A former dispatcher turned operations lead, he budgets crews, plans access for tight sites, and sequences packing to minimize claims. Daniel completed the Certified Moving Consultant (CMC) program through the industry trade group and mentors coordinators on long-distance planning, valuations, and origin/destination checklists.

Popular Categories

More to read

Related posts

grey water system

How to Build Your Own Grey Water System Easily

Looking for a simple, eco-friendly way to save water at home? A grey water system might be the perfect project.....

how much does it cost to ship a bike

How Much Does It Cost to Ship a Bike?

I remember the first time I had to ship my bike – I had no clue where to start or....

trade show shipping

Trade Show Shipping Guide: Costs, Tips & Best Practices

Getting your booth, displays, and equipment to a trade show isn’t as simple as booking a truck. I’ve learned that....

As Seen On

FleetOwner
Cdllife
Auto Remarking
Freight Waves
KSL.com