Tiny House Blueprints: Find, Read & Build Your Dream Home

tiny house blueprints find read build your dream home
Read 9 min

Table of Contents

If you’ve ever wanted to build your own tiny home, everything starts with the plan.

A solid tiny house blueprint isn’t just a sketch. It’s the full picture of how your home will come together. The best ones include clear dimensions, smart layouts, material details, and utility placements so you can actually bring your design to life.

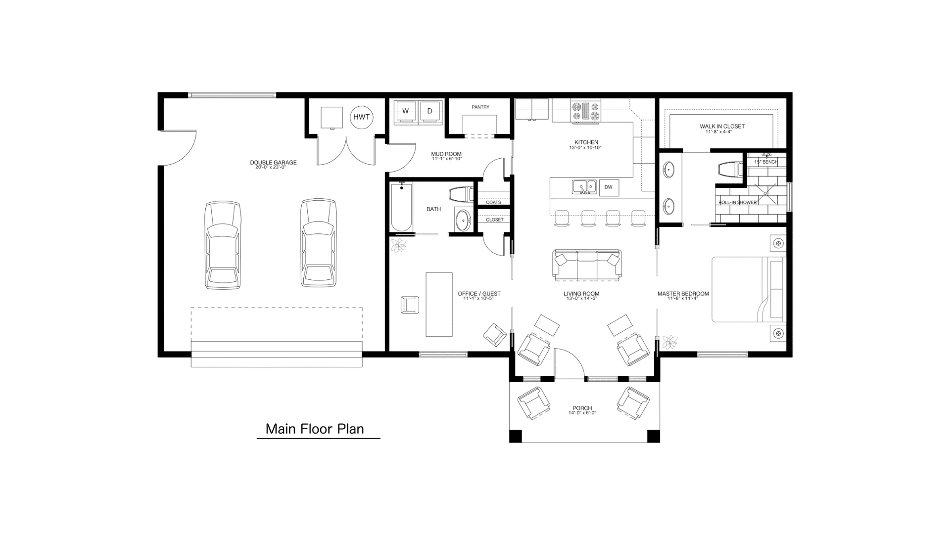
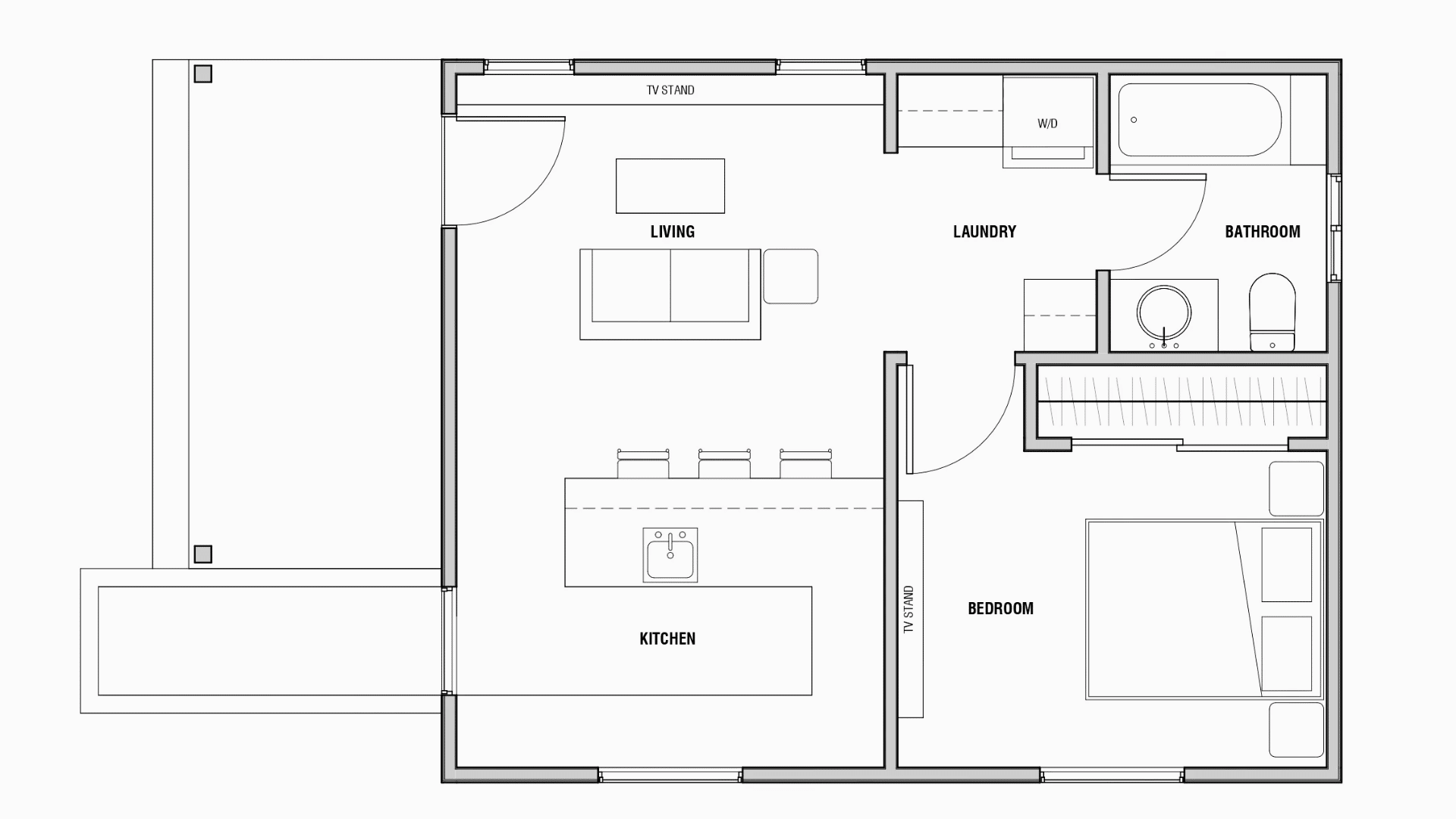
Here’s how it all fits together: the floor plan shows the inside layout, where rooms, doors, and furniture go.

The elevations reveal how the house looks from the outside, including height and style. And the construction drawings give the technical details builders need to make it real.

By the end, you’ll know how to find, read, and choose the perfect tiny house blueprint, whether free or custom.

Types of House Blueprints

By Size By Layout By Purpose
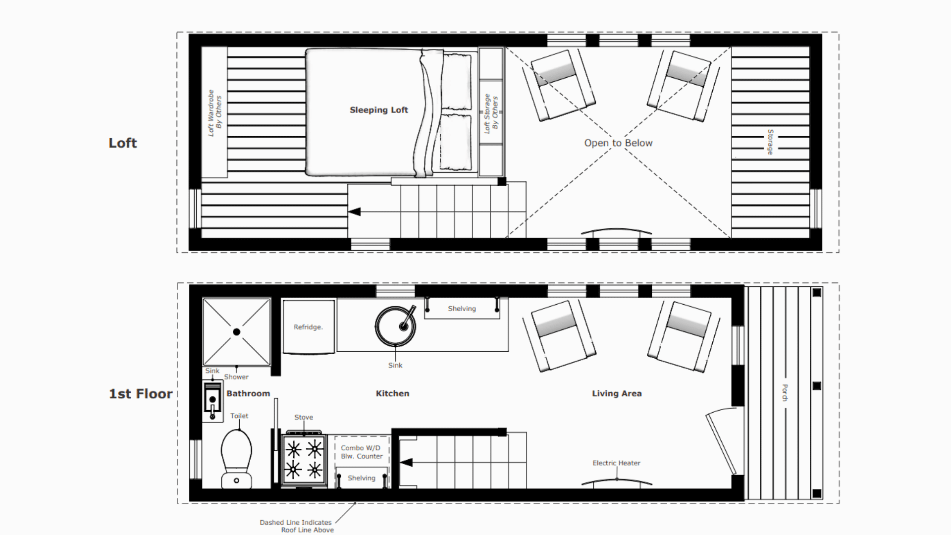
Under 400 sq ft – best for solo living or travel; very compact and easy to maintain. Loft – maximizes vertical space with a sleeping area above and open space below. ADU (Accessory Dwelling Unit) – a small secondary home on your property, great for guests or rentals.
600 sq ft – fits a small kitchen, bathroom, and cozy living area. 1-Story – easy to build and move around in; perfect for accessibility. Guest House – a cozy space for friends or family to stay comfortably.
800 sq ft – balanced comfort for couples or small families. 2-Story – doubles the usable area without taking up more land space. Full-Time Home – smart layout for everyday living with built-in storage.
1000 sq ft – still “tiny” but with extra storage or an added bedroom. Open Concept – bright, connected space that feels larger and more inviting. Mobile Tiny Home – built on wheels for flexibility, travel, or off-grid life.

Tiny house blueprints come in different forms, and the right one depends on how much space you need, how you’ll use it, and how you want it to feel. Once you know your priorities, it becomes much easier to pick the blueprint that fits your tiny home dream.

Free vs. Paid Tiny House Plans

When you start searching for blueprints, you’ll find both options. Each comes with its own pros and cons, depending on how much detail and flexibility you need.

Feature Free Plans Paid Plans
Detail Level Usually includes basic floor layouts and measurements; great for inspiration or DIYers with experience. Offers full construction details, material lists, electrical and plumbing diagrams, and precise dimensions.
Licensing & Legality May not be certified or approved for permits; good for personal or off-grid builds. Often includes engineer-approved designs and legal documentation for permits and inspections.
Customization Options Limited; you’ll need to make changes on your own or use design software. It can be customized through professional designers or directly through the seller.
Ease of Use Simple and beginner-friendly, but may lack clarity for builders. Designed for professional use; clear, accurate, and ready for contractors.
Cost Free to download and modify yourself. Typically ranges from $50 to $500+, depending on detail and size.
Where to Find Tumbleweed Houses offers detailed free blueprints built by real people. HousePlans.com and The House Designers have curated professional, paid designs.

Tiny House Blueprint Ideas

There’s no single way to design a tiny home. Below are a few ideas that show just how creative you can get when planning your own space:

1. The Cozy Cabin

the cozy cabin

This 400 sq ft design brings the comfort of a classic log cabin into a smaller footprint. It usually features wood finishes, a front porch, and an open living space that connects the kitchen, dining, and lounge area seamlessly.

2. Modern Loft Home

modern loft home

Perfect for those who love bright, airy interiors, this blueprint uses tall windows and clean lines to make the space feel larger. The loft bedroom adds privacy while keeping the lower floor open for daily living.

3. Two-Story Tiny Escape

two story tiny escape

A great choice for anyone who wants a bit more room without losing that tiny-home charm. The second story can serve as an office, guest space, or storage area, making the 700 sq ft layout surprisingly versatile.

4. Tiny House on Wheels

tiny house on wheels

Designed for mobility and freedom, this tiny house on wheels is ideal for full-time travelers or off-grid living. It often includes foldable furniture, solar power, and smart storage to make every inch count.

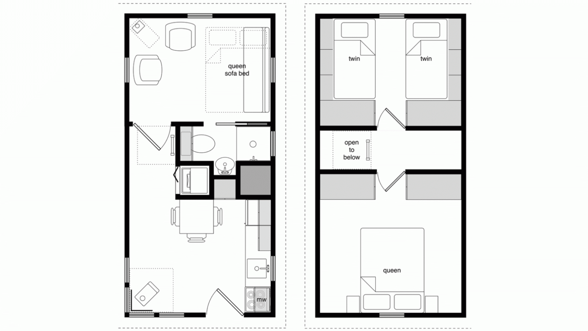
5. The Family Pod

the family pod

Built around practicality and comfort, this 900 sq ft plan offers two bedrooms, a shared bathroom, and a cozy living area. It’s perfect for couples or small families who want a compact home that still feels spacious.

6. Minimalist Studio

minimalist studio

With under 350 sq ft, this blueprint embraces simplicity and function. It combines sleeping, cooking, and living into one clean, open space. Easy to build, maintain, and personalize with your own touches.

7. Rustic Farmhouse Tiny

rustic farmhouse tiny

This plan blends country charm with modern efficiency. You’ll find exposed wooden beams, large windows, and a snug loft bedroom that make it feel warm and welcoming; perfect for a peaceful retreat.

8. Modern Container Home

modern container home

Made from repurposed shipping containers, this design stands out for its eco-friendly build and sleek industrial style. It’s affordable, durable, and customizable, often featuring large glass doors and open layouts for natural light.

9. Guest Retreat

guest retreat

A 500 sq ft ADU-style design that’s ideal for visitors, rentals, or extended family. It includes a small kitchenette, private bathroom, and an outdoor deck, combining comfort and style in a compact package.

How to Read and Use a Tiny House Blueprint

You don’t have to be an architect to understand a tiny house plan. Once you know what to look for, reading and using a blueprint becomes simple and even exciting.

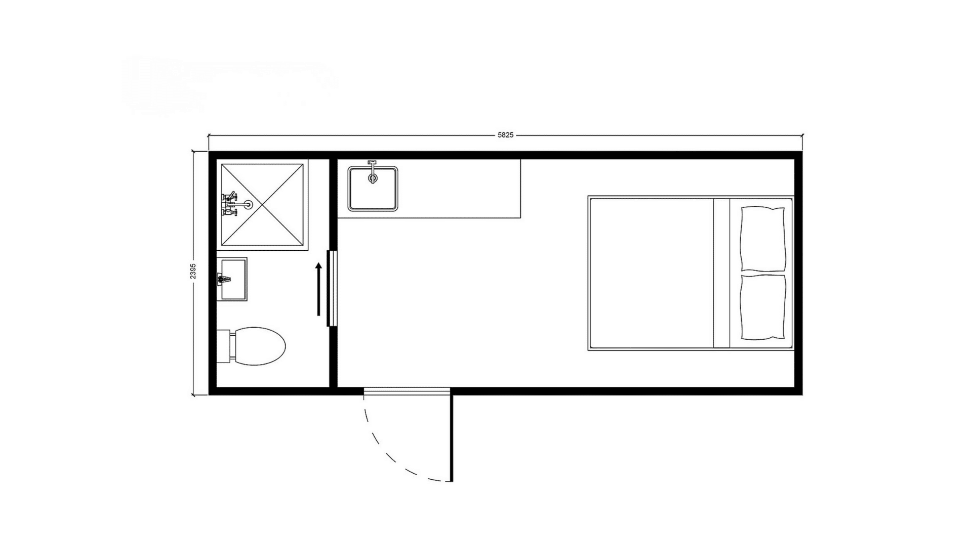
Understanding Scale and Symbols

Every blueprint uses scale and symbols to show real-life details in a smaller format. The scale tells you how the drawing compares to real size. For example, one inch on paper might equal four feet in your home.

Symbols mark things like doors, windows, and fixtures so you can see where everything fits. Once you recognize these, the plan starts to feel like a real space instead of just lines on paper.

Estimating Materials

Your blueprint also helps you plan how much material you’ll need. Measure the main areas like walls, floors, and the roof to get a rough idea of size.

Then, use standard coverage amounts for materials such as wood, insulation, or siding. Always add a small buffer to cover mistakes or waste.

You don’t need perfect numbers, just a smart estimate that keeps your build realistic.

Making Safe Modifications

It’s normal to want to tweak your design a little, but safety comes first. Avoid moving load-bearing walls or roof beams unless a professional approves it.

Try to keep plumbing and electrical lines where they are drawn. And if you add or change windows and doors, make sure they meet safety and code requirements.

Small changes can personalize your home. Just make sure they don’t affect the structure or safety.

Cost Breakdown: From Blueprint to Build

Expense Category Typical Range Notes
Blueprint/Design ~$1,500 – $5,000 Planning and design work.
Permits & Zoning ~$500 – $5,000 Depends heavily on location and classification.
Materials & Construction $30,000 – $80,000 (typical build) Including framing, siding, roofing, etc.
Total Build Cost (typical) ~$30,000 – $70,000 For many DIY or standard builds.

Tip: Use the blueprint/design cost + materials + permits to set your initial target budget.
Then cushion for extras (unexpected site work, modifications, premium finishes).

Tips to Reduce Costs Without Cutting Quality

  • Choose a simple rectangular layout rather than complex shapes. Fewer angles = less waste.
  • Use standard-size materials (windows, doors, drywall) to avoid custom costs.
  • Opt for mid-quality finishes instead of luxury; you’ll still get durability without overpaying.
  • Do DIY work where safe (painting, trim, finishing) and hire pros only for critical parts (electrical, structure).
  • Reuse or salvage materials (doors, cabinets, flooring); good deals exist if you watch for them.
  • Plan utilities upfront so you don’t have to redo wiring or plumbing later (which gets expensive).
  • Shop around for permit and zoning fees and ask if there are tiny-home-friendly codes in your area that reduce surprises.

Before you start building, it’s important to make sure your tiny house is legal where you plan to live. Rules vary by state, so checking early can save you time, stress, and money later.

State-by-State Basics

Tiny house laws aren’t the same everywhere. Some states treat them like regular homes if they’re built on foundations, while others classify them as RVs if they’re on wheels. Always check your local zoning and building codes before starting.

You can use resources like World Population Review’s guide or Tiny House Alliance USA to see what’s allowed in your state.

Why Approved Plans Matter

Approved plans make your build smoother and safer. They show inspectors that your home meets all structural and safety requirements, which helps you get permits and pass inspections faster.

Having engineered code-compliant plans also protects you when it comes to insurance, resale, or financing.

How to Get Engineered Plans for Inspection

Decide first if your home will be on a foundation or on wheels; this affects which rules apply. Then, work with an architect or engineer familiar with tiny homes to get plans stamped and ready for approval. Submit those to your local building office before you begin construction.

Once you follow these steps, your tiny house will meet legal standards and be ready for a smooth inspection process.

Wrapping Up

Building a tiny home isn’t just about saving space; it’s about designing a lifestyle that fits you. With the right tiny house blueprint, you can plan smarter, stay on budget, and build something that feels truly yours.

From reading plans and estimating materials to handling permits and customizing, each step brings your dream closer to reality. What matters most is starting with a clear plan and taking it one decision at a time.

If you’re ready to turn your vision into a real home, start exploring blueprints today and take the first step toward building your own tiny house!

Leave a Reply

Your email address will not be published. Required fields are marked *

Table of Contents

About the Author

Jason Miller helps readers plan efficient small-footprint living across portable homes, prefab & modular builds, container living, and tiny homes. He’s advised moving companies and design teams on layout, utility hookups, and fast setup workflows. Jason studied Interior Architecture at Pratt Institute (continuing-ed certificate) and has led dozens of micro-space buildouts and move-in projects from permits to punch lists. Off the job, he road-tests compact furnishings and off-grid kits.

Popular Categories

More to read

Related posts

grey water system

How to Build Your Own Grey Water System Easily

Looking for a simple, eco-friendly way to save water at home? A grey water system might be the perfect project.....

how much does it cost to ship a bike

How Much Does It Cost to Ship a Bike?

I remember the first time I had to ship my bike – I had no clue where to start or....

trade show shipping

Trade Show Shipping Guide: Costs, Tips & Best Practices

Getting your booth, displays, and equipment to a trade show isn’t as simple as booking a truck. I’ve learned that....

As Seen On

FleetOwner
Cdllife
Auto Remarking
Freight Waves
KSL.com