16 Tiny House Floor Plans & Ideas for Every Lifestyle

tiny house floor plan
Read 10 min

Dreaming of living small but smart? Tiny houses are all about creativity, comfort, and clever use of space.

Whether you’re planning to build your own or just love seeing unique layouts, finding the right tiny house floor plan is where the fun begins.

From cozy loft designs to roomy no-loft layouts, every plan tells a story about how people live, work, and relax in just a few hundred square feet.

In this guide, you’ll find popular tiny home floor plans, real examples, and helpful tips from people who’ve already made the switch.

Let’s get started!

What is a Tiny House Floor Plan?

A tiny house floor plan is a simple layout that shows how every inch of space is used inside a small home.

It includes where the kitchen, bathroom, bedroom, and living area go – and how they all fit together. Because space is limited, a good floor plan makes every corner count.

Tiny homes usually range from 100 to 400 square feet, so planning smart is key. Some designs include loft bedrooms, while others keep everything on one level.

The goal is to create a home that feels open, organized, and perfectly matched to your lifestyle, even in a small footprint.

Tiny Home Sizes At a Glance

Tiny homes come in all shapes and sizes. The right size depends on how many people live there, how much stuff you have, and whether you plan to travel or stay put.

Size Range Square Feet Best For Key Features
18–24 ft 150–250 sq ft Solo living or couples Compact, often includes a loft
26–32 ft 250–350 sq ft Small families or 2 people Room for bedroom + living area
10–12 ft wide park model 350–450 sq ft Long-term or stationary homes Spacious, often includes a full kitchen & bath

Choosing the right size helps balance comfort and mobility – big enough to live well, yet small enough to stay simple.

Popular Tiny House Floor Plan & Layout Ideas

Tiny house floor plans come in endless shapes and styles. Each layout makes the most of limited space while keeping comfort and function in mind.

1. Classic Loft Studio

classic loft tiny house floor plan

A bright, open layout with a cozy loft above the main living area. The ground floor fits a kitchen, sofa, and small bathroom, while stairs or a ladder lead to the loft.

The design keeps the living zone open and airy while providing privacy upstairs. Perfect for singles or couples who love open space and don’t mind a short climb.

2. Main-Floor Bedroom Plan

main floor bedroom tiny house floor plan

Designed for easy access, everything sits on one level for comfort and simplicity. The main bedroom connects directly to the living area and kitchen, keeping movement easy.

It’s ideal for older homeowners or anyone avoiding stairs while maintaining cozy charm. This plan feels more spacious than it looks, with clear sightlines across the home.

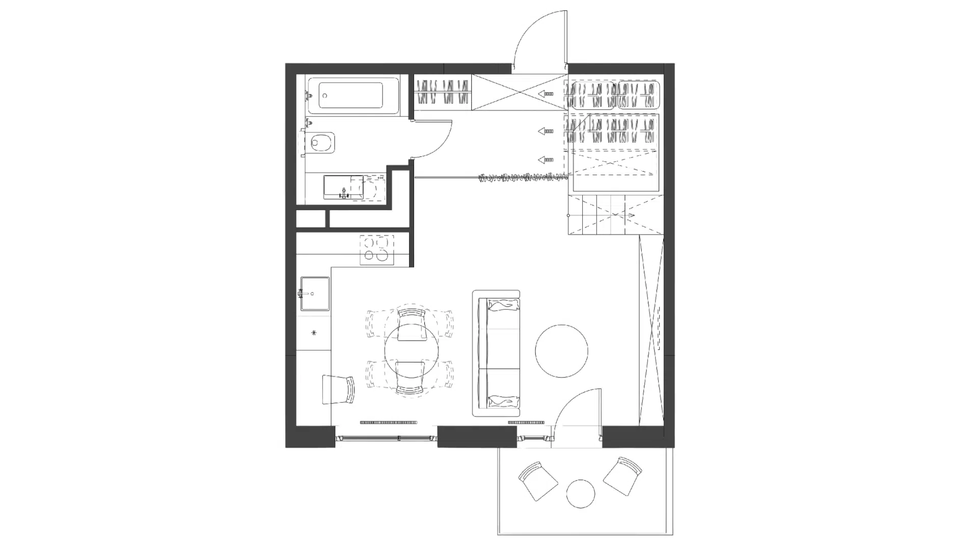
3. Gooseneck Trailer Layout

gooseneck tiny house floor plan

Built on a gooseneck trailer, this plan adds a raised bedroom over the hitch for privacy. Below it sits a compact kitchen and an open living zone.

It feels larger without adding too much length, making it perfect for travelers. The extra headroom also provides a sense of separation and comfort while staying mobile.

4. Open-Plan Studio

open plan studio tiny house floor plan

Walls are kept to a minimum, allowing every area to flow together naturally. The kitchen, dining, and lounge blend seamlessly into one bright space.

Big windows or glass doors invite sunlight and make the home feel larger. Ideal for minimalists who enjoy light, openness, and flexibility in design.

5. Two-Bedroom Tiny Home

two bedroom tiny house floor plan

A clever setup that fits two sleeping spaces – one lofted, one on the main floor. Great for small families, guests, or a live-work setup.

Each area feels private yet connected through a central living zone. Smart storage ensures there’s room for everyone without feeling cramped.

6. Raised Platform Bed Layout

raised platform bed tiny house floor plan

This plan swaps a full loft for a raised sleeping platform with storage below. You can add drawers, shelves, or even a hidden desk under the bed.

It’s perfect for single-level living without wasting vertical space. A cozy, efficient design that’s both stylish and functional.

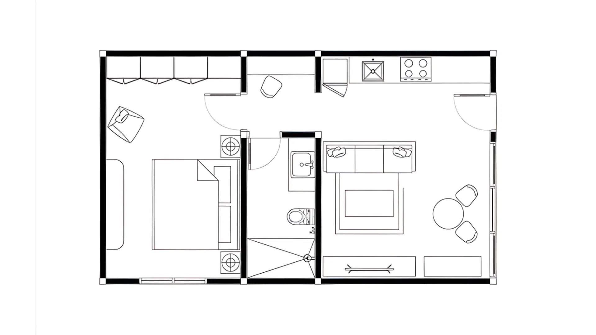
7. Single-Story 300 Sq Ft Plan

single story tiny house floor plan

Everything – living, dining, kitchen, and sleep – fits neatly on one open level.

The design eliminates ladders, making it easy for all ages. Simple lines and clear pathways create a roomy feel. Ideal for anyone who values comfort, safety, and easy movement.

8. Tiny Home With Porch/Deck

tiny house with porch floor plan

A built-in porch extends your living area outdoors, perfect for morning coffee or evening relaxation. The interior remains compact, but the outdoor space adds breathing room.

It’s great for mild climates and social gatherings. This plan blends indoor comfort with outdoor charm beautifully.

9. Park Model With Full Kitchen

park model tiny house floor plan

Slightly larger, this stationary plan includes a full kitchen with appliances and cabinets. There’s space for a dining table, a roomy bath, and a private bedroom.

It feels like a mini apartment inside a tiny frame. Best for long-term living with every comfort you’d want.

10. Lofted Kids’ Zone Home

lofted kids zone tiny house floor plan

This plan gives kids their own fun loft space while adults enjoy a private bedroom below or separated by a wall. The main floor has a kitchen, bath, and cozy living room.

It’s perfect for families with young children or guests. Creative built-ins make the most of every corner for play and storage.

11. Compact Couple’s Retreat

compact couples tiny house floor plan

A cozy hideaway designed for two people, featuring a bed nook, kitchenette, and small bathroom. The layout emphasizes comfort, privacy, and simplicity.

Great for weekend escapes, downsizing, or full-time minimalist living. Every inch is planned to make daily routines feel relaxed and effortless.

12. Work-From-Home Tiny Layout

work from home tiny house floor plan

A flexible design that includes a small desk nook or foldaway office. The workspace can double as a dining area when needed. Loft or main-floor sleeping options keep it adaptable.

Perfect for digital nomads or creatives who need focus without losing living space.

13. Off-Grid Cabin Style

off grid cabin tiny house floor plan

Built for remote or eco-living, this plan supports solar panels and composting toilets. The layout focuses on function, with a small kitchen, bath, and sleep area.

It’s efficient, rugged, and cozy for nature lovers. Great for cabins, vacation spots, or sustainable retreats.

14. Weekend Getaway Micro Home

weekend getaway micro tiny house floor plan

A super-compact layout under 200 sq ft that fits a kitchenette, fold-out bed, and tiny bath. It’s simple yet comfortable for short stays or guest use.

Lightweight and easy to move if built on wheels. Perfect for minimalists who value simplicity and charm.

15. Multi-Level Mini Home

multi level mini tiny house floor plan

This creative split-level plan divides zones by small steps, not full floors.

The layout adds visual interest while keeping an open feel. Each half-level separates living, kitchen, and sleeping spaces. A modern look for those who like dynamic interiors.

16. Modular Expandable Tiny Plan

modular expandable tiny house floor plan

Starts small but allows you to add sections later, like an office or guest pod. The initial core includes living, kitchen, and sleeping zones.

Expansion keeps costs low upfront while leaving room to grow. Great for evolving needs or tight budgets.

Tiny Home Budget & Build Notes

Building a tiny house takes careful planning, especially when it comes to your budget. Costs can vary based on size, materials, and how much work you do yourself.

Category Average Cost Range What’s Included Budget Tips
Floor Plan & Design $500 – $2,000 Professional plans or software tools Start with a free or simple design before upgrading
Materials $10,000 – $30,000 Lumber, insulation, siding, roofing Buy in bulk or use reclaimed materials
Labor $5,000 – $25,000 Builders, electricians, plumbers DIY smaller projects to save costs
Utilities Setup $2,000 – $10,000 Plumbing, wiring, solar, or off-grid systems Compare grid vs off-grid to find savings
Interior Finishes $3,000 – $15,000 Cabinets, flooring, paint, fixtures Choose multi-use or recycled materials
Permits & Fees $500 – $3,000 Local permits, inspections, and delivery Check zoning rules early to avoid delays

Staying flexible and planning ahead can make your build smoother and more affordable. Always set aside at least 10–15% extra for unexpected costs – it’s the secret to finishing strong without stress.

How To Choose The Right Layout

Choosing the right layout is the most important step in designing your tiny home. The perfect plan depends on your lifestyle, how you’ll use the space, and what comforts you can’t live without.

  • Think About Who’s Living There – Are you solo, a couple, or a small family? The number of people determines how many beds, storage spots, and seating areas you’ll need.
  • Plan for Mobility Needs – If you dislike climbing or have limited mobility, skip lofts and pick a main-floor bedroom.
  • Decide Between Travel or Stationary Living – Tiny houses on wheels need lighter builds, while stationary ones can go wider and include more features.
  • Consider Utilities and Power – Off-grid homes need room for solar batteries or composting toilets; on-grid layouts can be more flexible.
  • Think Long-Term – Will your needs change in a few years? Pick a layout that can adapt, like modular or expandable plans.

A layout that fits your lifestyle will make tiny living easier, cozier, and more enjoyable every day.

Tools To Design Your Tiny House Before You Build

Before you commit to a floor plan, it helps to test your ideas visually. These easy-to-use tools let you design, tweak, and go over your tiny home before a single nail is hammered.

  • RoomSketcher – Lets you draw floor plans, move furniture, and preview everything in 3D. Great for beginners who want a simple drag-and-drop layout tool.
  • TinyEasy 3D Designer – Built for tiny homes, this tool helps you plan dimensions, add lofts, and export PDFs.
  • SketchUp Free – A flexible 3D modeling tool that’s great for custom layouts or creative builds.
  • Planner 5D – Offers ready-made templates and virtual tours to see your design from every angle.

Try different setups until you find one that feels just right – it’s the easiest way to build confidence before building your dream tiny home.

Community Opinions: Learn From People Living Tiny

Many people who live in tiny spaces share their real-world stories online – and their honesty is refreshing.

Some say it’s the best decision they’ve ever made, while others admit it can feel tight after a while.

One Reddit user shared, “We’ve lived in our 200 sq ft off-grid tiny house on 20 acres for five years now… we love it, although we’d really like something closer to 600–800 sq ft.”

Another wrote, “It’s freeing but takes real discipline to keep clutter down.” These experiences show that tiny living is less about space – and more about mindset.

You can read the full stories here:Reddit – r/TinyHouses | Reddit – r/TinyHouse101 | The Cool Down – Living Off-Grid Reddit Story

Conclusion

Tiny homes prove that living small doesn’t mean giving up comfort or style. With the right floor plan, every square foot can serve a purpose and still feel open and welcoming.

Whether you dream of a cozy loft, a family-friendly two-bedroom, or an off-grid retreat, there’s a design that fits your lifestyle.

Take time to check out different layouts, plan your budget, and learn from real people who’ve already made the switch.

Ready to start your own tiny living journey? Browse floor plans, join online communities, and start sketching ideas today.

10 Responses

  1. this was great. I’ve been doing research on Tiny home since April super excited thank you I’m just looking for land at this time.

  2. Hello my name is Katrina and I was wondering if you can help me with my tiny house I love to have my bedroom on the main floor… Because I have bad legs and knees I seen one that I really do love but now I can’t find it but I will try to remember how it look like…my email is [email protected]

  3. Hi, I would love to live in a tiny house and I love the idea of a loft bedroom with stairs for it. Looking forward to seeing this and buying some land. I will need a washer and dryer set for it also.

  4. Won’t be the cheapest pretty much just for someone to go in and section out the rooms installed you utility outlets on the water and sewage attachments you know I put the bathtub and sink and the kitchen sink in and just the plug outlets not worried about no bars no cabinets oh just fixing it out to the bedroom or bedrooms how much would that cost no fancy things you know just paint the walls and section them out so a panel you know paneling on your other whatever it is the cheapest one without all this high fruit and stuff and how much would a building be like that and it would be like a station it don’t need to have no wheels it would be like you know planning and staying in one spot

  5. I’m looking to find out what the cheapest would be just to insert the dividing the walls of the rooms section out the power installed the water the back of the toilet in the kitchen sink don’t worry about no cabinets no fancy stuff it’s just a cheap the adorable reliable small town home two small bedrooms or either you know one whatever the cheapest is is this me and this is two grown ups and my baby dog and it would be on a piece of land it wouldn’t be moved so what would be the value of that and the walls you wouldn’t have to put it on Fancy on the walls slap some paint on them or some cheap paneling on and the floors and slap some paint on the floor put some in the middle of your mom you ain’t got to be nothing fancy my money is tight but I’m trying to downsize from a mobile home I’ve got this phone apart and I’m going to have to have someone cuz I’m looking into options

Leave a Reply

Your email address will not be published. Required fields are marked *

About the Author

Jason Miller helps readers plan efficient small-footprint living across portable homes, prefab & modular builds, container living, and tiny homes. He’s advised moving companies and design teams on layout, utility hookups, and fast setup workflows. Jason studied Interior Architecture at Pratt Institute (continuing-ed certificate) and has led dozens of micro-space buildouts and move-in projects from permits to punch lists. Off the job, he road-tests compact furnishings and off-grid kits.

Popular Categories

More to read

Related posts

grey water system

How to Build Your Own Grey Water System Easily

Looking for a simple, eco-friendly way to save water at home? A grey water system might be the perfect project.....

how much does it cost to ship a bike

How Much Does It Cost to Ship a Bike?

I remember the first time I had to ship my bike – I had no clue where to start or....

trade show shipping

Trade Show Shipping Guide: Costs, Tips & Best Practices

Getting your booth, displays, and equipment to a trade show isn’t as simple as booking a truck. I’ve learned that....

As Seen On

FleetOwner
Cdllife
Auto Remarking
Freight Waves
KSL.com