Mobile Home Sizes: Guide, Dimensions, Costs, and Fit

mobile home size guide dimensions costs and fit
Read 8 min

Table of Contents

Mobile home sizes can feel confusing at first. There are many options, and each one fits a different lifestyle and budget.

Some homes are short and narrow, while others are wide and feel more like a traditional house. Knowing the basic size ranges helps you understand what will actually work for your space and daily needs.

In this guide, I’ll break down common mobile home sizes in a clear and simple way. You’ll also get a look at how manufactured and modular home sizes differ, so you know what to expect before you start shopping.

What is a Mobile Home and How Sizes Work

A mobile home is a type of factory-built home that is made in one piece or in sections and then moved to a site for setup. These homes are built indoors, not on the land where they will be placed.

NOTE: Many people use the term “mobile home” to describe older models, while newer ones are often called manufactured homes.

Mobile home sizes explain how wide, long, and spacious a home really is. Size is usually measured by the home’s width, length, and total square footage.

Some mobile homes are more compact, while others are wide and offer plenty of living space. The size you choose affects room layout, storage, and comfort.

Understanding these size basics makes it easier to compare options and pick a home that fits your land, budget, and daily lifestyle.

Common Mobile Home Size Ranges

common mobile home size ranges

Mobile homes come in different size ranges to match different needs and budgets. Understanding these common ranges helps you quickly narrow down what will work best for your space and lifestyle.

  • Single-Wide Mobile Homes: Narrow and compact homes that usually work well for smaller lots and simple living needs.
  • Double-Wide Mobile Homes: Wider homes made from two sections, offering more rooms and a layout closer to a traditional house.
  • Triple-Wide and Multi-Section Homes: Larger homes built from three or more sections, designed for families who want extra space and flexibility.

These size ranges make it easier to compare options and choose a home that feels comfortable without paying for space you don’t need.

Mobile & Manufactured vs. Modular Home Sizes & Variations

These home types may look similar, but their sizes and layouts can vary based on how they are built and installed. Understanding these differences helps you compare options more clearly and avoid confusion while shopping.

Home Type Common Width Common Length Typical Square Footage Sections Size Flexibility Notes on Layout
Mobile Home (Older Models) 8–14 feet 40–70 feet 400–1,000 sq ft Single Limited Narrow rooms, compact layouts, and older designs
Manufactured Home (Single-Wide) 14–18 feet 52–80 feet 600–1,300 sq ft One Moderate Efficient layouts are good for small families
Manufactured Home (Double-Wide) 20–32 feet 40–90 feet 1,000–2,300+ sq ft Two High Wider rooms, open floor plans, more storage
Manufactured Home (Multi-Section) 40–60+ feet Varies by design 2,000+ sq ft Three or more High Large kitchens, extra living areas
Modular Home Varies by design Varies by design 800–3,000+ sq ft Multiple modules Very High Custom shapes, multi-story options possible

While all three offer different size options, the best choice depends on your space, local rules, and how much room you want for daily living.

How Mobile Home Size Affects Cost

Mobile home size directly impacts how much you pay upfront and over time. Larger homes offer more space, but they also come with higher overall costs.

  • Single-Wide Homes: Usually cost between $50,000 and $90,000, making them the most budget-friendly option.
  • Double-Wide Homes: Often range from $90,000 to $160,000, with more room and better layouts.
  • Multi-Section Homes: Can cost $160,000 to $250,000 or more, depending on size and features.
  • Setup and Delivery Costs: Bigger homes cost more to move, install, and connect to utilities.
  • Ongoing Expenses: Larger homes mean higher heating, cooling, and maintenance costs.

Choosing a size that matches your needs helps you stay comfortable while keeping long-term costs under control.

Mobile Home Floor Plan Layouts by Size

Mobile home layouts change based on how much space is available. Each size category offers different room options and design flexibility.

1. Small Mobile Home Layouts

small mobile home layout

Smaller homes focus on efficient use of space. They usually include one or two bedrooms with a compact kitchen and living area. Open layouts help make the home feel less crowded.

Storage is limited, so smart furniture choices matter. These layouts work best for minimal living and lower monthly costs.

2. Medium Mobile Home Layouts

medium mobile home layout

Medium-sized homes offer better room separation and flow. These layouts often include two to three bedrooms and two bathrooms. Kitchens may have islands or dining spaces.

This size works well for families or shared living. It offers a balance between comfort and affordability.

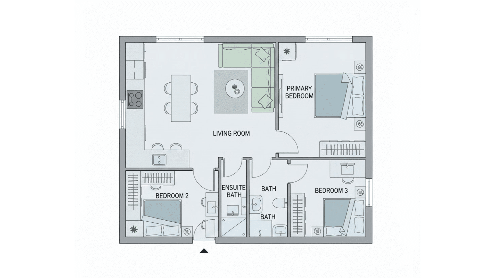
3. Large and Multi-Section Layouts

large and multisectional mobile home layout

Larger homes feel closer to traditional houses. They often include multiple living areas, larger kitchens, and walk-in closets. Some layouts offer split bedrooms for privacy.

These homes are ideal for long-term living and growing families. They provide the most flexibility for future needs.

Choosing the Right Mobile Home Size

Picking the right mobile home size helps you stay comfortable without paying for space you won’t use. The best size depends on your daily needs, future plans, and the space you have available.

  • Household Size: More people usually means you’ll need extra bedrooms and bathrooms.
  • Lifestyle Needs: Think about work-from-home space, storage, and entertaining areas.
  • Lot Space: Your land size and layout can limit how wide or long your home can be.
  • Budget Limits: Larger homes cost more to buy, move, set up, and maintain.
  • Future Plans: Consider family growth, resale value, or long-term living needs.

Taking time to match home size with your lifestyle makes the decision easier and more practical in the long run.

Lot Size, Setup Space, and Fit Considerations

Choosing the right mobile home size is not just about the home itself. Your lot size, access points, and setup space all play a big role in what will actually fit and work long term.

1. Lot Size and Zoning Rules

Before picking a home, you need to know the size of your lot and local zoning rules. Many areas have minimum lot size requirements and setback rules that control how close your home can be to property lines.

These rules affect how wide or long your home can be. Some zones also limit the number of sections allowed. Always check local codes early to avoid costly changes later.

2. Access and Delivery Space

Mobile homes are delivered in large sections, so clear access is important. Roads leading to the lot must be wide enough for transport trucks. Tight turns, low bridges, or narrow entrances can limit the size you can bring in.

Trees, fences, and power lines may also need clearing. Planning delivery access ahead of time helps prevent delays and extra fees.

3. Setup and Installation Area

Once the home arrives, there must be enough space to set it properly. This includes room for cranes, support vehicles, and workers. Multi-section homes need extra space to join sections together.

You also need space for foundations, tie-downs, and utility connections. A crowded setup area can increase installation time and costs.

4. Utilities and Long-Term Fit

Utility placement affects where your home can sit on the lot. Water lines, septic systems, and power hookups must align with the home’s layout.

Poor placement can limit future upgrades or additions. It’s also smart to think about parking, outdoor space, and future needs. A good fit today should still work years from now.

Mobile Home Size Limits by State or City

Mobile home size limits depend on local and state rules. These rules control what can be placed on a lot and help maintain safety and spacing standards.

Regulation Area Common Size Limits What It Affects
Zoning District Width and total square footage Determines if single- or multi-section homes are allowed
Setback Rules Distance from property lines Limits how wide or long a home can be
Lot Size Minimums Total land area required May restrict larger homes on small lots
Community Rules Park-specific size caps Often limit older or oversized homes

Because rules vary by location, it’s always best to check with local planning offices before choosing a home size

Conclusion

Choosing the right mobile home size is about finding a balance between comfort, cost, and space.

When you understand common size ranges, layout options, and local limits, it becomes much easier to make a smart choice.

The right size can improve daily living, reduce long-term costs, and help your home fit better on your land. Before making a decision, take time to measure your lot, review local rules, and think about your future needs.

If you’re still unsure, speaking with a dealer or local planning office can help. Start by listing your must-have features and comparing sizes to find a mobile home that truly fits your lifestyle.

8 Responses

  1. I would like something about 500 square foot. With a large walk in closet, stand up handicapped shower, ample bedroom space for an adjustable bed, ample living room space for a recliner & tv & book shelves, lowered counters in the kitchen to support a wheelchair access. My budget is very low being I’m disabled. If U could lead me into the right direction.

  2. My family lives in a manufactured home, and no matter where these homes are set up to be lived in, there should also be “rat walls” put in place to prevent any kind of animal or rodent, from working their way into the home. It should be made as a “City Code” to make these types of home pest free once and for all. I know my comment isn’t about questions in regards to buying a home, but it’s a suggestion that I thought is important to suggest when these homes are sold and put onto a lot.

  3. Thanks for Sharing this Information, I know what I want but not sure where to start. For instance, I live in a cold climate and very Expensive, also how do you get financing? My preference would be live in a tiny homes community

  4. I’m 64 and want trailer mobile home ( manufactured home) for last residence information on size and type and required placement of manufactured homes ( above articles I’ve searched 6 weeks online to read before retirement at 65

  5. Living in houston, tx . However I have not purchased land as of yet, will your services include installation for lands, water, sewer, electricity, and internet.?

Leave a Reply

Your email address will not be published. Required fields are marked *

Table of Contents

About the Author

Jason Miller helps readers plan efficient small-footprint living across portable homes, prefab & modular builds, container living, and tiny homes. He’s advised moving companies and design teams on layout, utility hookups, and fast setup workflows. Jason studied Interior Architecture at Pratt Institute (continuing-ed certificate) and has led dozens of micro-space buildouts and move-in projects from permits to punch lists. Off the job, he road-tests compact furnishings and off-grid kits.

Popular Categories

More to read

Related posts

tiny house blueprints find read build your dream home

Tiny House Blueprints: Find, Read & Build Your Dream Home

If you’ve ever wanted to build your own tiny home, everything starts with the plan. A solid tiny house blueprint....

tiny home on wheels

Tiny Home on Wheels: Cost, Rules & Design

The idea of a tiny home on wheels has turned from a niche dream into a growing movement built on....

tiny home communities you ll love to know

9 Best Tiny Home Communities in the U.S. for Simple Living

Have you ever pictured yourself living with less space but more freedom? Maybe trading clutter for comfort, or high costs....

As Seen On

FleetOwner
Cdllife
Auto Remarking
Freight Waves
KSL.com